Wellness Spaces

Wellness should be built to last

Whether you’re a private client, hotel, or spa, every Wellness Space we create is built using stable timber frames and traditional construction methods — never SIP panels or modular pieces — to ensure long-term strength, durability, and a premium finish that stands the test of time. Each base model is fully customisable in both size and features, with bespoke options available to create a space that is entirely your own. From spa retreats and outdoor saunas to boutique gyms, yoga studios, and art spaces, every design is tailored to your needs and built for lasting performance. Our approach is simple: exceptional build quality, thoughtful design, and spaces that support the well-being of those who use them.

  • Hot tub in a spa lodge
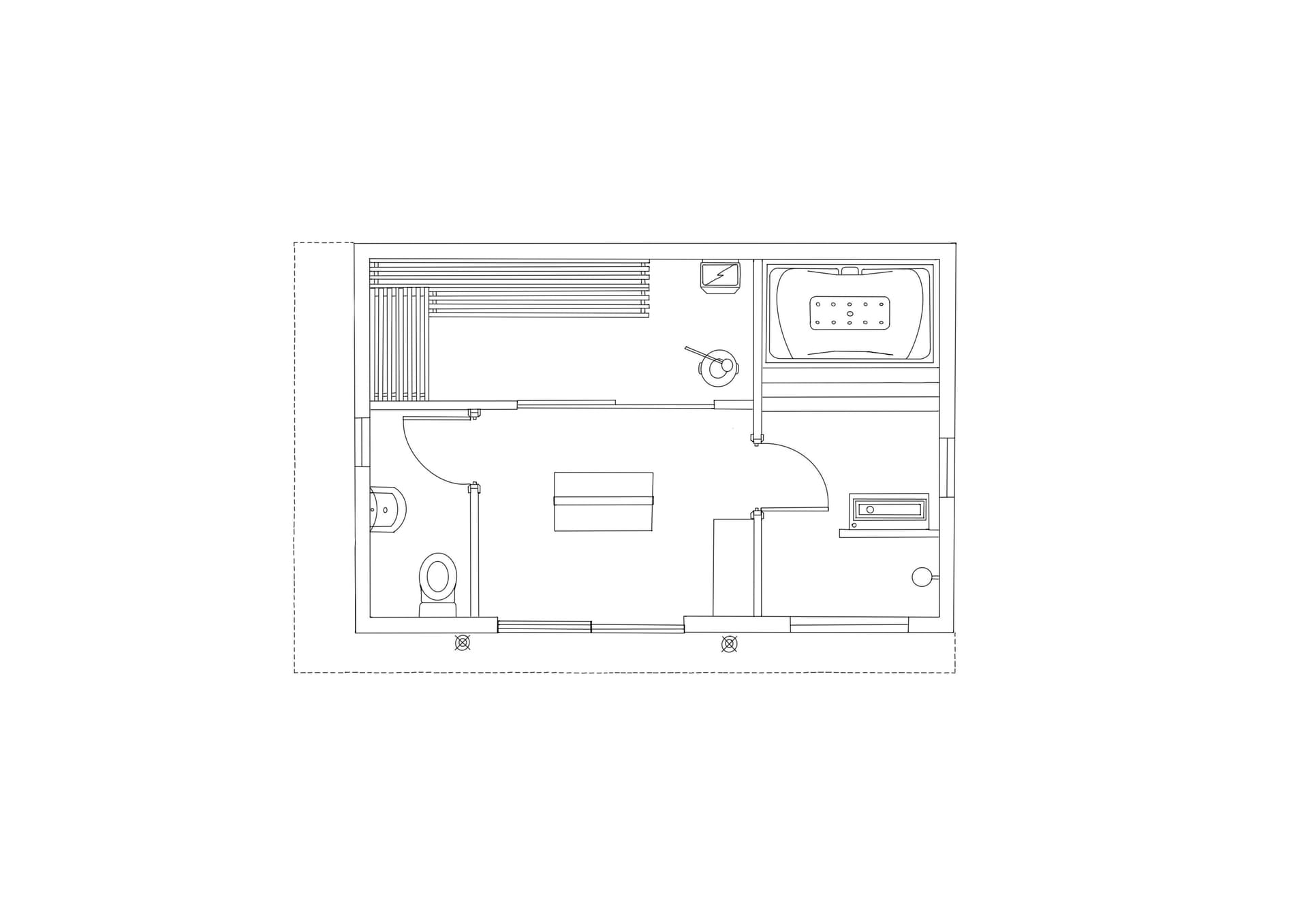
  • Spa retreat floorplan
  • Hot tub in a spa lodge
  • Hot tub in a spa lodge
  • Hot tub in a spa lodge
  • Hot tub in a spa lodge
  • Spa retreat floorplan

Spa Retreat

A private sanctuary designed for complete relaxation. Built with stable timber frames and high-grade materials, our spa retreats can include hydrotherapy baths, steam rooms, hot tubs, LED lighting integration, and built-in speaker systems — all tailored to your preferred layout and style. Every detail, from finishes to mood lighting, is chosen to create a calm, restorative environment.

Boutique Gym

A high-performance training environment built with solid timber frames, robust flooring systems, and premium finishes. Air conditioning, integrated speaker systems, and optional wellness features such as saunas and showers can all be added to create a fully equipped, luxury workout space.

  • Two people training in an outdoor gym lodge
  • Two people training in an outdoor gym lodge
  • Two people training in an outdoor gym lodge
  • Two people training in an outdoor gym lodge
  • Two people training in an outdoor gym lodge
  • Two people training in an outdoor gym lodge
  • Two people training in an outdoor gym lodge
  • Two people training in an outdoor gym lodge
  • Three people stretching in a yoga studio
  • Three people stretching in a yoga studio
  • Three people stretching in a yoga studio
  • Three people stretching in a yoga studio
  • Three people stretching in a yoga studio
  • Three people stretching in a yoga studio
  • Three people stretching in a yoga studio
  • Three people stretching in a yoga studio
  • Three people stretching in a yoga studio
  • Three people stretching in a yoga studio

Yoga Studio

A light-filled, serene space built for movement, mindfulness, and meditation. Constructed with stable timber frames and finished to your design, each studio can include tailored flooring, lighting, and storage. Optional features such as integrated sound systems or adjoining wellness facilities can enhance the experience.

Treatment Room

A dedicated space for beauty therapies and wellness treatments, designed for professional use in spas, hotels, or private homes. Built with stable timber frames and insulated for year-round comfort, each room can be fitted with treatment couches, storage, lighting, and soundproofing to create a quiet, professional environment.

  • Two people in an outdoor sauna lodge
  • Two people in an outdoor sauna lodge
  • Two people in an outdoor sauna lodge
  • Two people in an outdoor sauna lodge
  • Two people in an outdoor sauna lodge
  • Two people in an outdoor sauna lodge
  • Two people in an outdoor sauna lodge
  • Two people in an outdoor sauna lodge
  • Two people in an outdoor sauna lodge

Let’s build a brighter future.

Video showing one of pathfinder homes lodges called The FairwayVideo play button
Video showing one of pathfinder homes park homes called The HawthorneVideo play button
Path finder logo
Follow Us
Instagram logoFacebook logoLinkedin logoX logoYoutube logo
Contact Us
sales@pathfinderhomes.co.uk
customercare@pathfinderhomes.co.uk
01626 833 799
Pathfinder Homes Limited,
Cavalier Road, Heathfield,
Newton Abbot, Devon,
TQ12 6FJ
©Pathfinder HomesAll Rights Reserved
Terms and Conditions
Privacy Policy